首页 走进宁强 新闻中心 政府信息公开 政务服务 互动交流 专题专栏

宁强县自然资源局建设项目批前公示

宁强县自然资源局建设项目批前公示

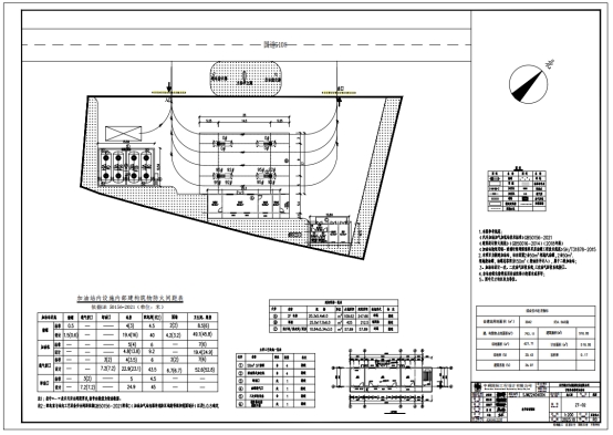
项目名称:宁强县柏林驿加油站

建设单位:汉中润合天成能源发展有限公司

建设位置:宁强县汉源街道办事处柏林驿村

审批单位:宁强县自然资源局

用地性质:零售商业用地

建设内容:建设1栋站房、1栋洗手间

经济技术指标:

总建筑面积:793.11㎡

容积率:0.17

建筑密度:26.07%

绿地率:20.43%

此方案面向社会公示,公示期10天,若对方案有异议,请在公示期内向宁强县自然资源局反映。公示诣在征求社会意见,最终方案以我局审批为准。

公示日期:2025年10月22日

公示单位:宁强县自然资源局

监督电话:0916-4221594


相关稿件